Sustainable Microhouse

The microhouse exemplifies the principles outlined by Passivhaus standards, integrating climatic architecture to establish a sustainably luxurious living environment.

Inspired by the serene surroundings of the nearby River Neris and the pine trees encircling the property, the house's design echoes the fluidity of nature's forms.

Client
Private

Year
2023

Dimmable LED’s trace wayfinding as an atmospheric or night light solution.

Circular lights make up the remaining fixtures as the representation of the common mushrooms in the region which are of cultural significance.

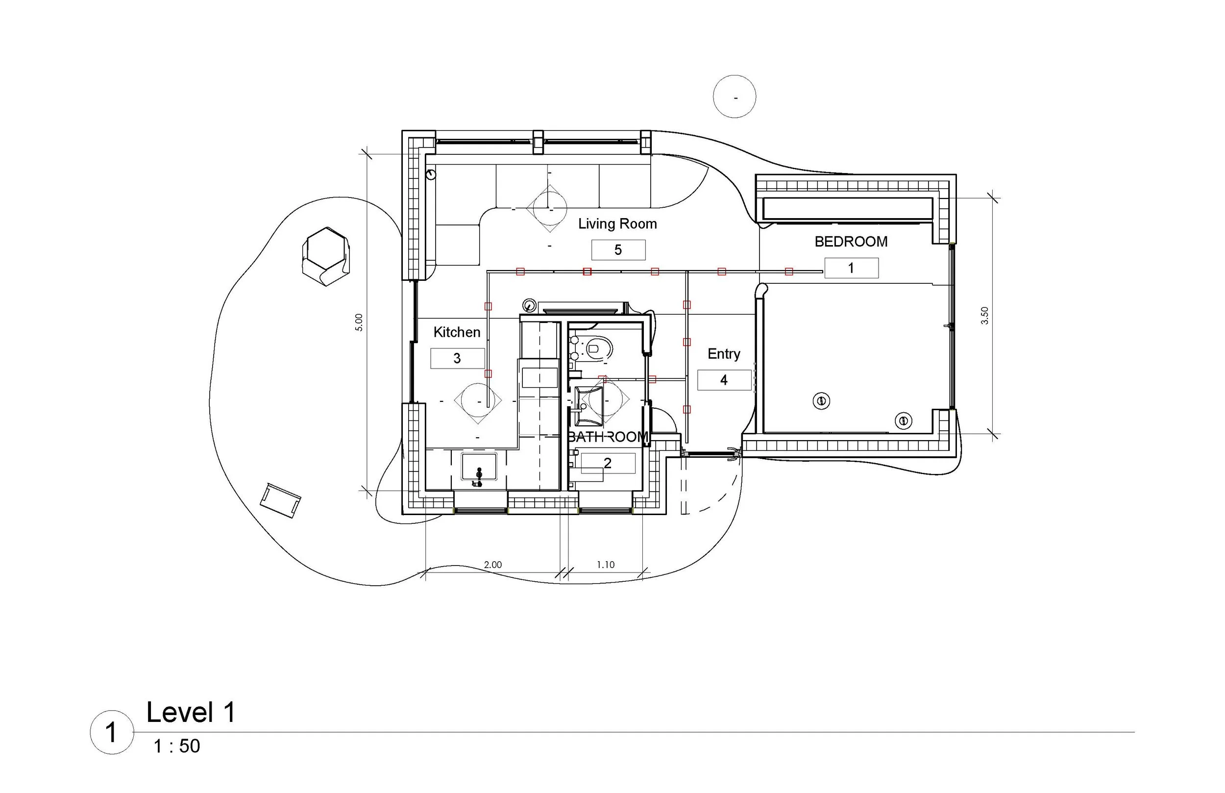
The floor plan was established in a way which would allow a breeze from any cardinal direction using any window or door within the house. This would give the user a sense of control over their space and the ability to further regulate the temperature.

The house was also positioned in a way which would allow sun exposure throughout the day without acquiring too much thermal intake.

Material selection was kept in mind to provide a tranquil atmosphere while embodying sustainable luxury. Mycelium concrete provides a thick and temperature regulating space for the cold Baltic winters and warm summers.

Pine wood from the few trees cut for the footprint of the house are used within the project, milled and treated to give a natural pine smell.

Previous
Previous

Torre Delle Milizie

Next
Next

Library Renovation